The Acorn, Oakridge Plot 9

2 Bed, Detached

Our kitchens are professionally designed and include many of the appliances that you find essential – a stainless steel double oven, a gas hob and an extractor hood, an integrated fridge/freezer, a washer/dryer and a dishwasher. Floor tiling is chosen to complement the kitchen cupboards and worktops.

An energy efficient gas fired boiler provides underfloor heating to the ground floor and central heating to the first floor. The zoned heating and individual thermostatically controlled radiators enable you to adjust the temperature in each room and keep your home at a comfortable temperature for you.

Every home is fitted with ample power sockets and light fittings, including down lighters throughout the ground floor, bathroom and ensuite. Additional under-unit lighting is provided in the kitchen.

For peace of mind, mains powered smoke and carbon monoxide alarms are fitted with battery back-up, in case of power failure. Our homes are also fitted with passive security NACOS approved alarm systems, multi point locking to front and French doors and security locks to all ground floor windows.

Classic white sanitary ware is fitted throughout, which complements the flooring and wall tiles. Ladder style towel rails and integral shaver points are fitted as standard in all our bathrooms and en-suites. Front gardens will be attractively landscaped in accordance with the planning drawings.

The rear gardens will be turfed and enclosed by panel fencing. An outside tap is always fitted as standard. The interiors will be decorated throughout and built in wardrobes are provided where indicated on the floor plans.

Sold

Floorplans

Ground Floor

Kitchen 3000 x 2477mm 9′ 10” x 8′ 1”
Living / Dining 4842 x 4312mm 15′ 10” x 14′ 1”
Breakfast 2477 x 2097mm 8′ 1” x 6′ 10”

Download Floorplan

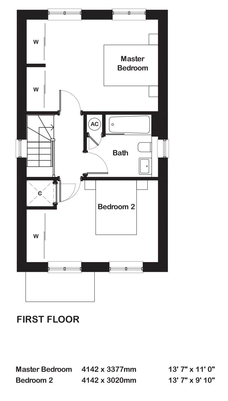
First Floor

Master Bedroom 4142 x 3377mm 13′ 7” x 11′ 0”
Bedroom 2 4142 x 3020mm 13′ 7” x 9′ 10”

Download Floorplan

Interested in The Acorn, Oakridge Plot 9?

For any enquiries, or to request more information please get in touch with our helpful team.